Santa Fe, NM
2007
AIA New Mexico Chapter Design Award, Merit Award – 2009
AIA Santa Fe Chapter Design Award, Citation Award – 2005
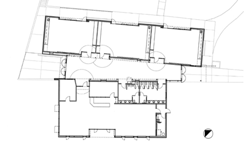
A new Multi-Media Library, 2-4 Grade Classrooms, Restrooms, and a Large Entry Hall was designed for Rio Grande School K-6 Elementary. Spears Architects created a masterplan for the campus in order to determine the future options for expansion of the school. The location of the building, parking, and landscape were aligned with the available building area. Parking and a new drop-off and pick-up were redeveloped to accommodate the large amount of traffic in the morning and afternoon. Water Collection Cisterns are proposed for the future phase in order to collect water from two of the roofs for landscape irrigation.
The 7,400 SF building was constructed of steel frame to reduce construction time and cost. Exposed acoustic metal deck was utilized in certain areas to maximize the interior space without using conventional dropped panel ceilings. Classroom and multi-media center are equipped with runways, chases, and floor boxes to facilitate the use of current tele-data needs. Color accents and clerestories were utilized to create a dynamic building. Hollow Metal Steel Storefront is used throughout the project for purposes of durability and low maintenance. HVAC roof top units with corrugated metal equipment screens heat and cool the building. Each classroom has plenty of fenestration and ventilation, and the views to the Jemez Mountains are on axis with the Main Hall.





